Het Hofke van Chantraine is een Kunst- en erfgoedcentrum, gehuisvest in het unieke kader van een meer dan 100 jaar oude pastorie, gelegen in een groene omgeving kort bij de dorpskern van Oud-Turnhout (Kerkstraat 46).

Als Kunstcentrum wil het Hofke een podium bieden voor en promotie verlenen aan allerlei kunstvormen door het zelf inrichten van tentoonstellingen en andere kleinschalige culturele activiteiten of het beschikbaar stellen van de ruimten aan kunstenaars. Anderzijds stelt het Hofke als Erfgoedcentrum zich ook tot doel om te zorgen voor het behoud en het promoten van het cultuurhistorisch erfgoed van de gemeente Oud-Turnhout.
De beschermde architecturale vormgeving van het gebouw samen met de grote tuin en aanpalende vijver vormen een uitnodigend decor met een bovenlokale uitstraling. Door haar vaak unieke en kwalitatief hoogstaande en regio-overschrijdende programmering, trekt zij ook bezoekers aan uit andere provincies en de buurlanden, voornamelijk uit Nederland.

Beschikbare ruimtes
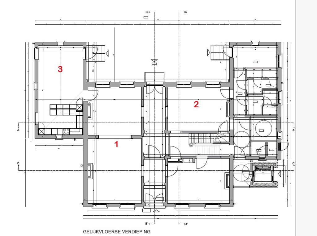
Gelijkvloers zijn er twee grote tentoonstellingsruimtes: kamers 1 en 2. Ook de gang tussen beide kamers kan gebruikt worden om werken tentoon te stellen.

Details gang gelijkvloers
Details kamer één
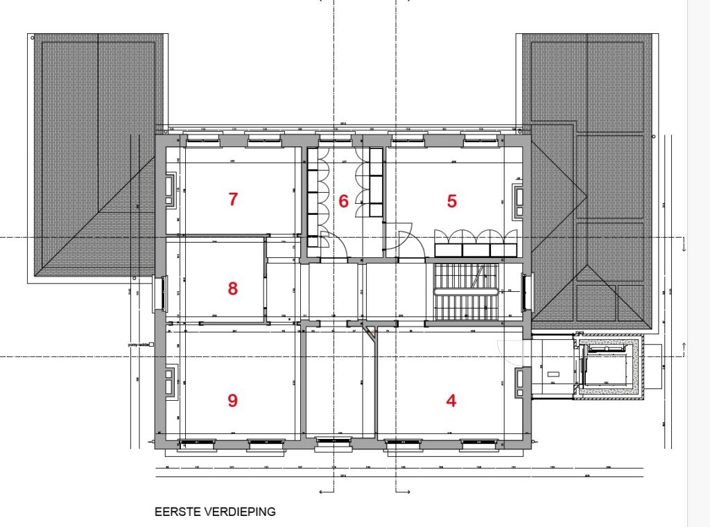
Op de eerste etage zijn er zes kamers.

Details kamer vier
Details kamer vijf
Details kamer zes
Details kamer zeven
Details kamer acht
Details kamer negen
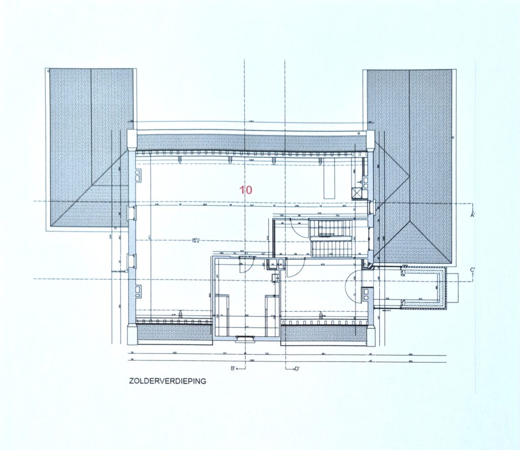
Er is een ruime zolder.

Details zolder
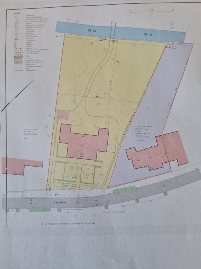
Tuin
